売買物件
清水丘2丁目新築戸建 N
☆耐震等級3、断熱等級4
☆土地間口:5.87m
☆延床面積:120.55㎡
☆有効土地面積:約17.3坪
☆清水丘小学校・墨江中学校区
☆南海高野線、南海本線、阪堺電気軌道阪堺線利用可


物件概要
- 物件名称
- 清水丘2丁目新築戸建 N
- 物件種別
- 一戸建
- 所在地
- 大阪市住吉区清水丘二丁目
- 交通
- 南海高野線 我孫子前 駅徒歩8分、南海本線 住ノ江駅徒歩11分
- 価格
- 4,380万円
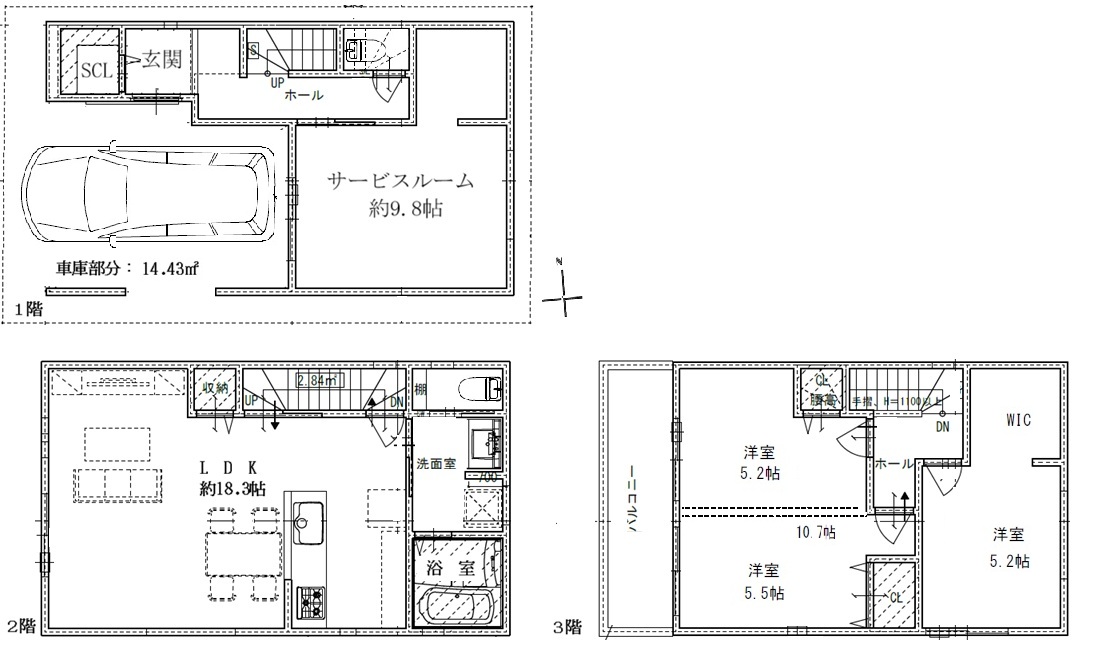
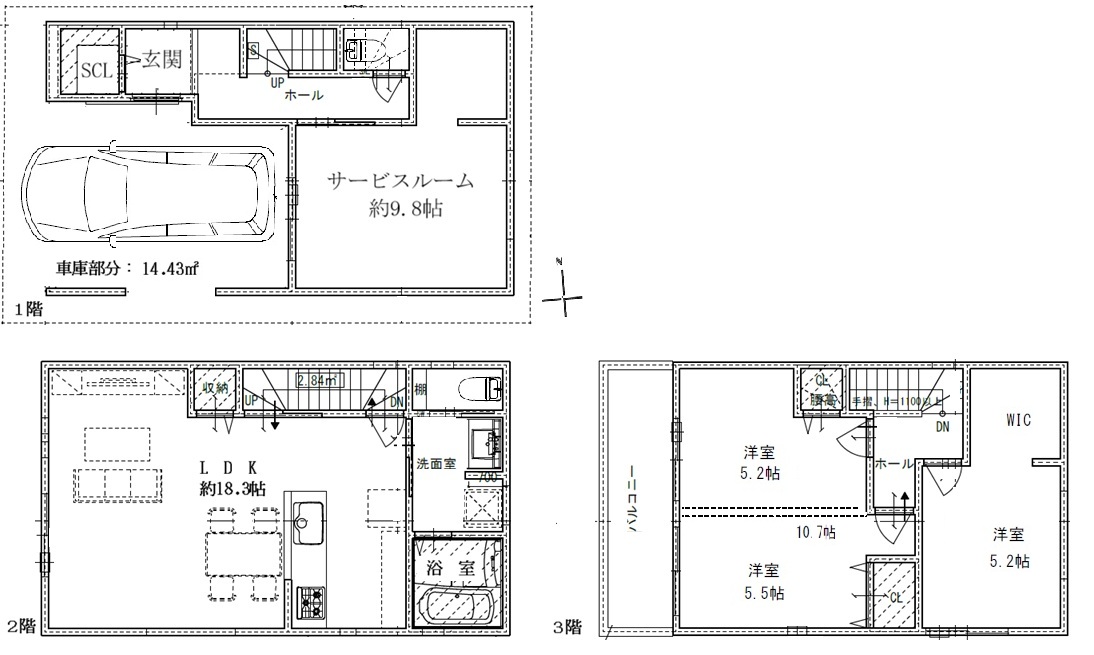
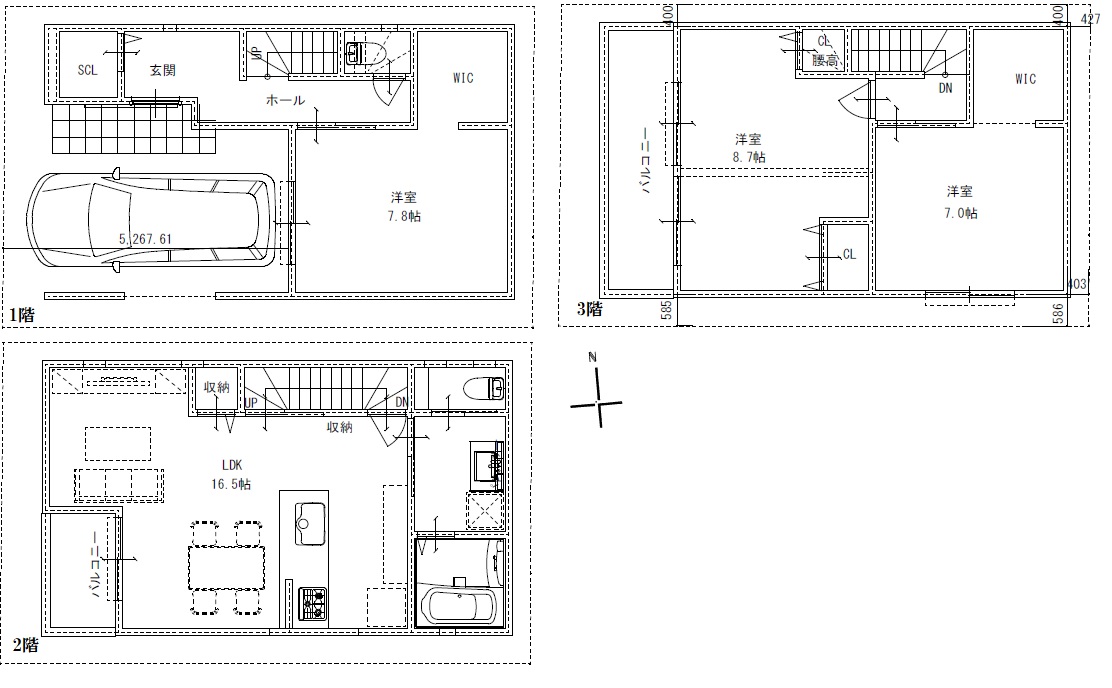
- 間取
- 建物構造
- 木造3階建
- 築年月日
- 2026年7月完成予定
- 建物面積
- 120.55㎡(確認申請面積)
- 駐車場
- 有
- 取引様態
- 仲介
- 引渡時期
- 相談
- 現況
- 建築中
- 周辺環境
- 設備・条件
- 地目
- 宅地
- 用途地域
- 第一種住居地域
- 地勢
- 平坦
- 接道状況
- 西側:幅員:約3.8m 接道:約5.8m
- 建ぺい率
- 80%
- 容積率
- 240%
- 土地面積
- 公簿:69.32㎡
- 備考
- ☆耐震等級3、断熱等級4 ☆土地間口:5.87m ☆延床面積:120.55㎡ ☆有効土地面積:約17.3坪 ☆清水丘小学校・墨江中学校区 ☆南海高野線、南海本線、阪堺電気軌道阪堺線利用可
- 情報更新日
- 2026/4/5














