売買物件

ヴェリテ帝塚山万代

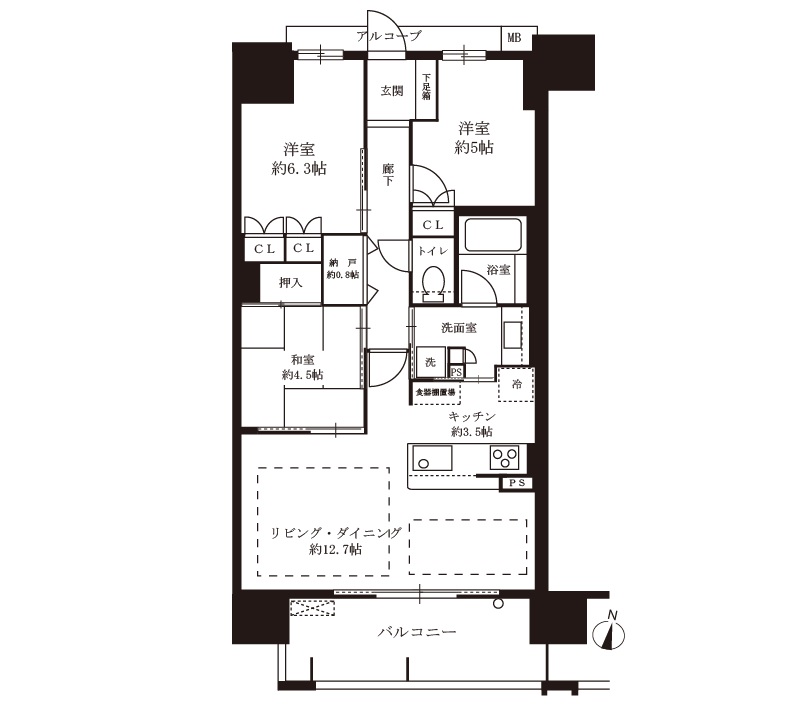
□南向きバルコニー

□専有面積:72.64㎡

□LDK:16.2帖 3LDK

□ペット相談可(別途規約有)

□床暖房、浴室乾燥機、食洗機有

物件概要

物件名称
ヴェリテ帝塚山万代
物件種別
マンション
所在地
大阪市住吉区万代2丁目
交通
大阪メトロ御堂筋線「昭和町」駅徒歩10分、阪堺上町線「姫松」駅徒歩6分
価格
4,480万円
間取
3LDK
建物構造
RC造
築年月日
2013年10月
駐車場
専有面積
72.64㎡
管理費
9200円
修繕積立費
7260円
施主
南海電気鉄道(株)・南海不動産(株)
施工会社
(株)鍛冶田工務店
管理会社
(株)東急コミュニティー
取引様態
仲介
引渡時期
期日指定 2026年3月下旬頃
現況
居住中
周辺環境
設備・条件
備考

□南向きバルコニー

□専有面積:72.64㎡

□LDK:16.2帖 3LDK

□ペット相談可(別途規約有)

□床暖房、浴室乾燥機、食洗機有

情報更新日
2025/10/16

この物件へのお問い合わせはこちら