売買物件
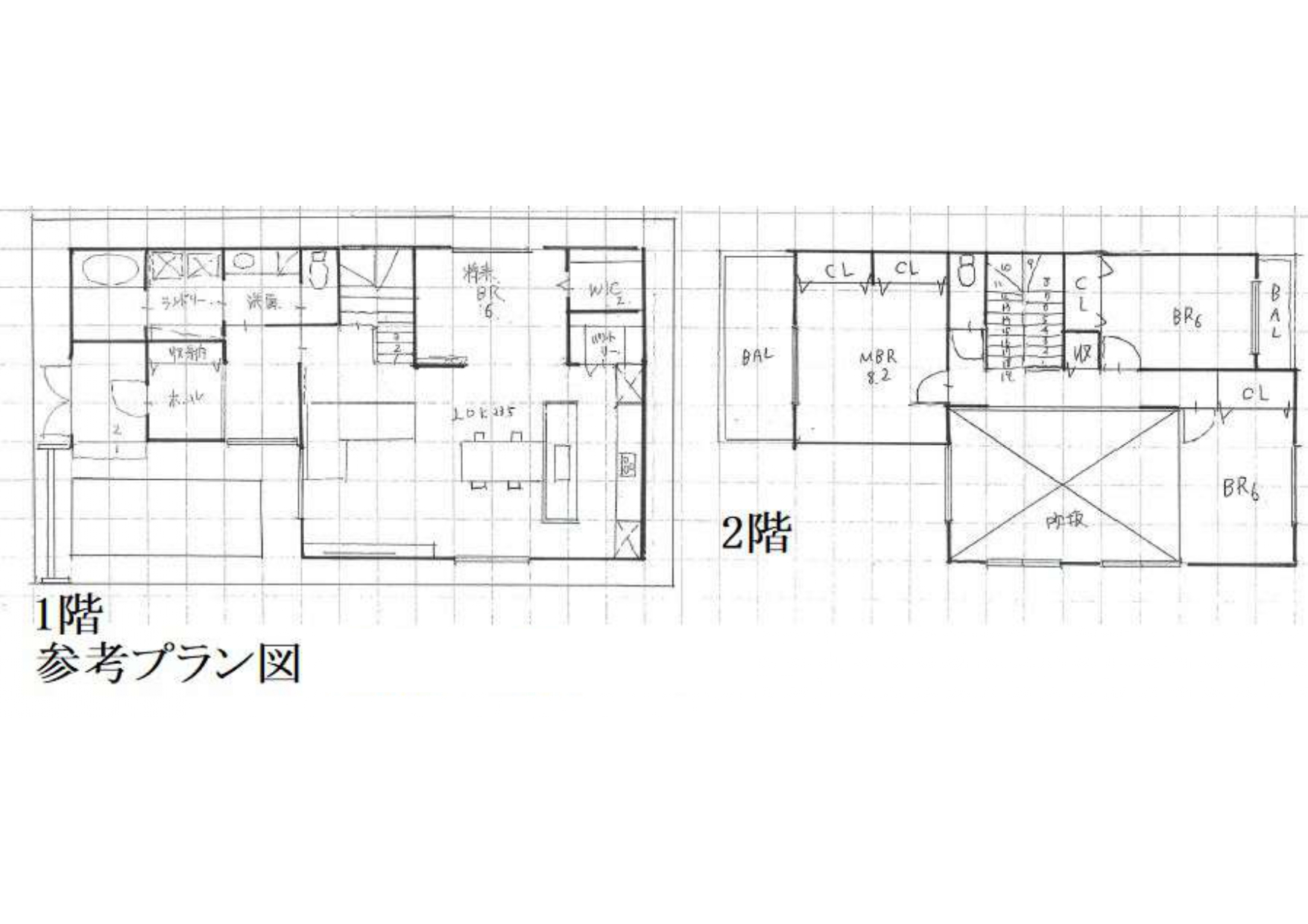
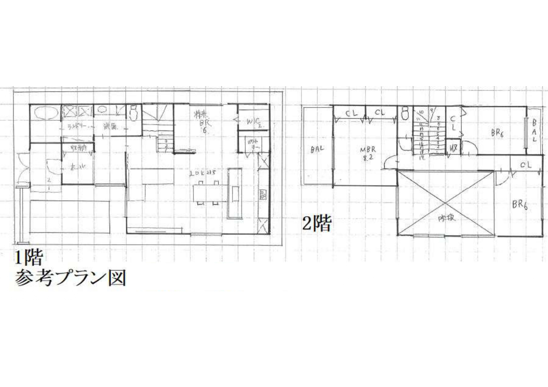
万代4丁目土地 40坪
土地面積:約40坪
確定測量済
間口:約8.67m
建築条件なし
建ぺい率:80%


物件紹介動画
物件概要
- 物件名称
- 万代4丁目土地 40坪
- 物件種別
- 土地
- 所在地
- 大阪市住吉区万代4丁目
- 交通
- 阪堺上町線「帝塚山三丁目」駅徒歩7分、南海高野線「帝塚山」駅徒歩10分
- 価格
- 6,000万円
- 取引様態
- 仲介
- 引渡時期
- 即時
- 現況
- 更地
- 周辺環境
- 地目
- 宅地
- 用途地域
- 商業地域
- 地勢
- 平坦
- 接道状況
- 西側:幅員:約4.0m 接道:約8.6m
- 建ぺい率
- 80%
- 容積率
- 240%
- 土地面積
- 132.22㎡
- その他
- 備考
- 土地面積:約40坪 確定測量済 間口:約8.67m 建築条件なし 建ぺい率:80%
- 情報更新日
- 2025/11/15














