売買物件
住吉区帝塚山東四丁目 新築戸建
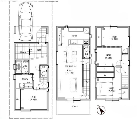
南西向きバルコニーから日差しが入り、
とても明るくて広々とした18帖のLDKです。


物件概要
- 物件名称
- 住吉区帝塚山東四丁目 新築戸建
- 物件種別
- 一戸建
- 所在地
- 大阪市住吉区帝塚山東四丁目7番23号
- 交通
- 阪堺電気軌道上町線「帝塚山東四丁目」駅まで徒歩2分
- 価格
- 4,780万円
- 間取
- 4LDK
- 建物構造
- 木造ガルバリウム鋼板葺3階建
- 築年月日
- 2025年11月建築
- 建物面積
- 109.35㎡
- 駐車場
- 1台駐車可能
- 取引様態
- 一般媒介
- 引渡時期
- 相談
- 現況
- 空家
- 周辺環境
- 設備・条件
- 都市ガス・電気・上下水道
- 地目
- 宅地
- 用途地域
- 第二種中高層住居専用地域
- 地勢
- 平坦
- 接道状況
- 北東幅員約5.4m
- 建ぺい率
- 60%
- 容積率
- 200%
- 土地面積
- 公簿77.92㎡(約23.57坪)
- 備考
- 南西向きバルコニーから日差しが入り、 とても明るくて広々とした18帖のLDKです。
- 情報更新日














