売買物件
サンメゾン駒川中野エルド 3F


物件概要
- 物件名称
- サンメゾン駒川中野エルド 3F
- 物件種別
- マンション
- 所在地
- 大阪市東住吉区中野三丁目2番12号
- 交通
- 大阪メトロ谷町線「駒川中野」駅まで徒歩7分
- 価格
- 3,980万円
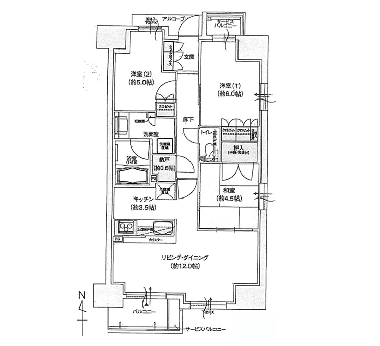
- 間取
- 3LDK
- 建物構造
- 鉄筋コンクリート造地上15階建
- 築年月日
- 平成26年1月築
- 駐車場
- 空無
- 専有面積
- 壁芯:69.15㎡
- 管理費
- 8,990円
- 修繕積立費
- 11,060円
- 施主
- サンヨーホームズ株式会社
- 施工会社
- 株式会社 長谷工コーポレーション
- 管理会社
- サンヨーホームズコミュニティ株式会社
- 取引様態
- 専任媒介
- 引渡時期
- 即時
- 現況
- 空家
- 周辺環境
- 周辺環境が充実しております。
- 設備・条件
- 都市ガス・電気・上下水道
- 備考
- 情報更新日














