売買物件
堺市堺区戎島町1丁 中古戸建
2024年4月リフォーム済
市小学校まで徒歩8分
月州中学校まで徒歩1分


物件概要
- 物件名称
- 堺市堺区戎島町1丁 中古戸建
- 物件種別
- 一戸建
- 所在地
- 大阪府堺市堺区戎島町1丁1-4、6
- 交通
- 南海本線「堺」駅 徒歩9分
- 価格
- 1,780万円
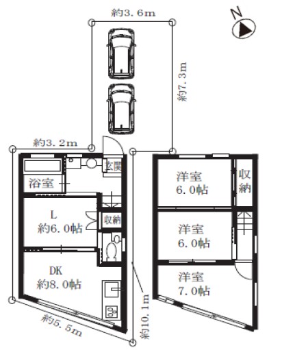
- 間取
- 3LDK
- 建物構造
- 木造2階建
- 築年月日
- 昭和55年12月築
- 建物面積
- 74.52㎡(約22.54坪)
- 駐車場
- 2台駐車可能(サイズ制限有)
- 取引様態
- 一般媒介
- 引渡時期
- 相談
- 現況
- 居住中
- 周辺環境
- 周辺環境が充実しております。
- 設備・条件
- 都市ガス・電気・上下水道
- 地目
- 宅地
- 用途地域
- 第二種住居地域
- 地勢
- 平坦
- 接道状況
- 南側公道幅員 約24.0m 北側公道幅員 約4.0m
- 建ぺい率
- 60%
- 容積率
- 200%
- 土地面積
- 72.15㎡(約21.82坪)
- 備考
- 2024年4月リフォーム済 市小学校まで徒歩8分 月州中学校まで徒歩1分
- 情報更新日














