売買物件
帝塚山イクス
光あふれる100㎡超の上質な空間
・最上階、三方向角部屋
・全居室バルコニー
・ペット飼育可


物件概要
- 物件名称
- 帝塚山イクス
- 物件種別
- マンション
- 所在地
- 大阪市住吉区帝塚山中一丁目
- 交通
- 南海高野線「帝塚山」駅徒歩4分 阪堺上町線「姫松」駅徒歩4分
- 価格
- 5,980万円
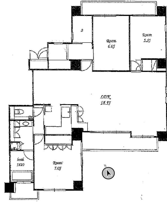
- 間取
- 3SLDK
- 建物構造
- RC造5階建
- 築年月日
- 2005年7月
- 駐車場
- 空無
- 専有面積
- 101.53㎡
- 管理費
- 22,340円/月
- 修繕積立費
- 20,310円/月
- 施主
- 株式会社新井組
- 施工会社
- 株式会社新井組
- 管理会社
- 日本ネットワークサービス
- 取引様態
- 仲介
- 引渡時期
- 相談
- 現況
- 居住中
- 周辺環境
- 設備・条件
- 備考
- 光あふれる100㎡超の上質な空間 ・最上階、三方向角部屋 ・全居室バルコニー ・ペット飼育可
- 情報更新日











