賃貸物件
ブランモネ1階
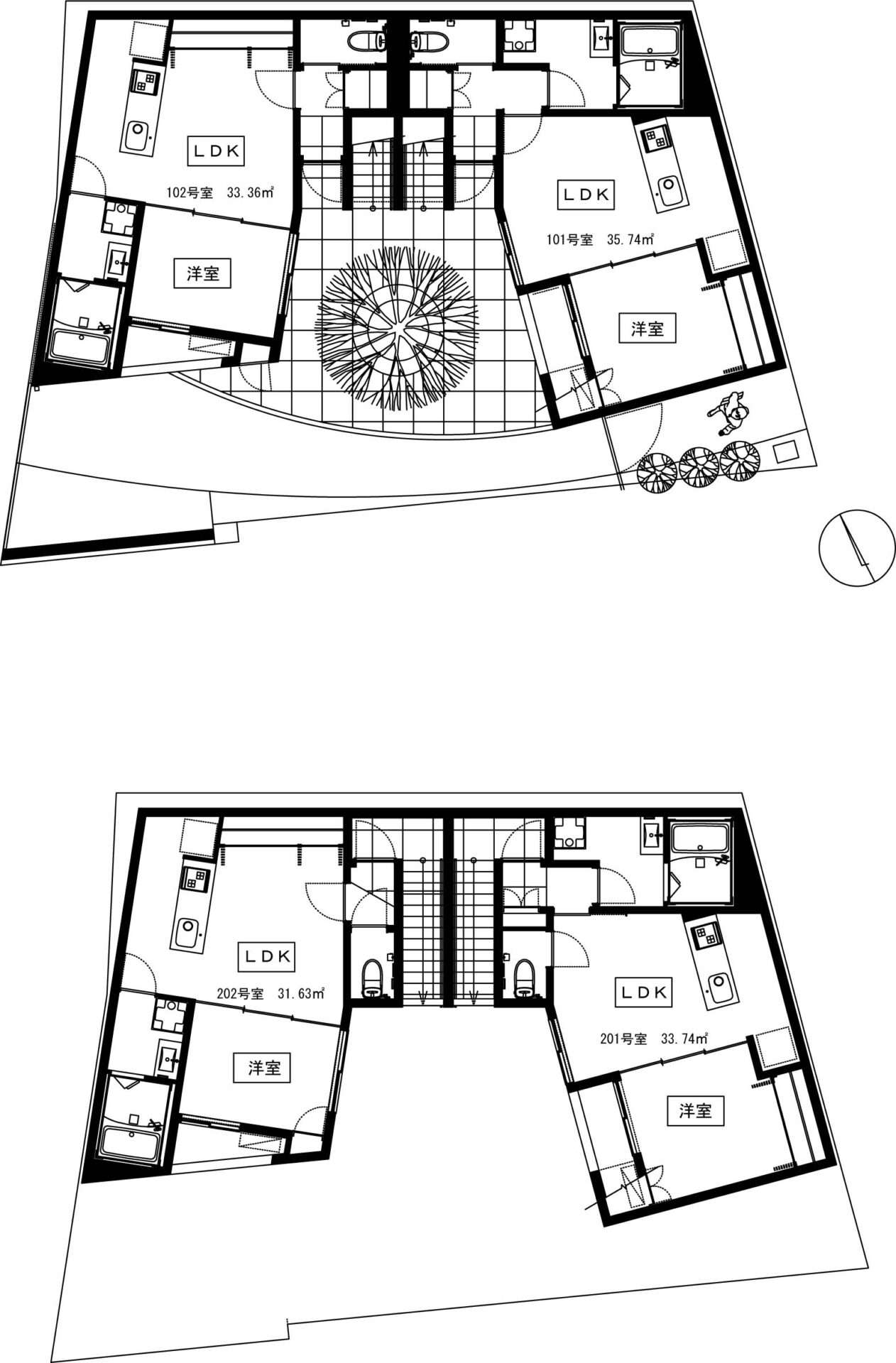
市場の中にあるコートハウスが新築時の設計コンセプトです。生活便利な立地にある心地よい空間。白い清潔な印象の建物です。中庭の植栽がシンボルツリーです。すぐにお住まいいただけます!


物件紹介動画
物件概要
- 物件名称
- ブランモネ1階
- 物件種別
- その他
- 所在地
- 大阪市阿倍野区王子町3丁目
- 交通
- 昭和町駅徒歩13分、東天下茶屋駅徒歩8分
- 賃料
- 79,000円
- 共益費
- 6,000円
- 間取
- 1LDK
- 建物階数
- 2階建ての1階
- 築年月日
- 令和元年5月
- 建物構造
- 木造2階建てタウンハウス
- 建物面積
- 33.36㎡
- 敷金
- なし
- 礼金
- 158,000円
- 更新料
- なし
- 保険料
- 要(2年20,000円~)
- 駐車場
- なし
- 設備
- エアコン
- 備考
- 市場の中にあるコートハウスが新築時の設計コンセプトです。生活便利な立地にある心地よい空間。白い清潔な印象の建物です。中庭の植栽がシンボルツリーです。すぐにお住まいいただけます!
- 情報更新日
- 2025/11/2














