賃貸物件
播磨町一丁目4番貸家
事業用としての使用も相談可。
・ペット飼育相談
・賃貸保証会社契約 全保連
初回賃料40%、年間更新料1.3万円
・入居時鍵交換代28,600円(税込)
・火災保険契約要20,000円~/2年毎
※1階リビングと3階洋室の上下に開ける窓が各1ヵ所開けた状態で固定できません。


物件概要
- 物件名称
- 播磨町一丁目4番貸家
- 物件種別
- 借家
- 所在地
- 大阪市阿倍野区1丁目4番29号
- 交通
- 大阪メトロ御堂筋線「西田辺駅」徒歩10分、阪堺上町線「北畠駅」徒歩8分
- 賃料
- 22万円
- 共益費
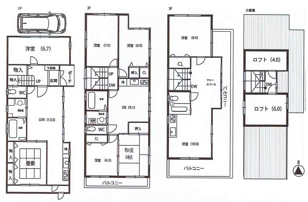
- 間取
- 8LDDKKK
- 建物階数
- 3階建て
- 築年月日
- 平成9年11月
- 建物構造
- 鉄骨
- 建物面積
- 178.80㎡
- 敷金
- 1カ月
- 礼金
- 2カ月
- 更新料
- 無し
- 保険料
- 火災保険2万円~/2年毎
- 駐車場
- ガレージ付
- 設備
- 給湯追い炊き、システムキッチン、TVアンテナ
- 備考
- 事業用としての使用も相談可。 ・ペット飼育相談 ・賃貸保証会社契約 全保連 初回賃料40%、年間更新料1.3万円 ・入居時鍵交換代28,600円(税込) ・火災保険契約要20,000円~/2年毎 ※1階リビングと3階洋室の上下に開ける窓が各1ヵ所開けた状態で固定できません。
- 情報更新日
- 2025/10/24














