賃貸物件
帝塚山フレール
☆事務所・飲食店等業種相談可
☆専有面積:約10.1坪
☆阪堺上町線沿い
☆阪堺上町線「姫松」駅徒歩2分
☆南海高野線「帝塚山」駅徒歩8分


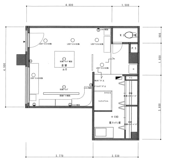
物件概要
- 物件名称
- 帝塚山フレール
- 物件種別
- 事業用物件
- 所在地
- 住吉区帝塚山東1丁目
- 交通
- 阪堺上町線「姫松」駅徒歩2分
- 賃料
- 80,000円
- 共益費
- 10,000円
- 間取
- 建物階数
- 2階
- 築年月日
- 昭和54年4月
- 建物構造
- RC造4階建
- 建物面積
- 約35.05㎡
- 敷金
- 2ヶ月
- 礼金
- 3ヶ月
- 更新料
- 保険料
- 駐車場
- 無
- 設備
- 備考
- ☆事務所・飲食店等業種相談可 ☆専有面積:約10.1坪 ☆阪堺上町線沿い ☆阪堺上町線「姫松」駅徒歩2分 ☆南海高野線「帝塚山」駅徒歩8分
- 情報更新日
- 2025/10/2














